






Marseille (13)
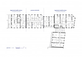
Le projet se situe dans le quartier de La Timone, à l’emplacement de l’ancien commissariat du 5ème arrondissement de Marseille. Il comprend la construction de 82 logements dont 47 logements sociaux familiaux et 35 logements de pension de famille, et un socle actif en rez-de-chaussée.
Ce projet d’habitation sociale se définit selon plusieurs axes avec une grande ambition environnementale et une volonté du « vivre ensemble » :
- une insertion respectueuse du contexte proposant de larges perméabilités ;
- une programmation ambitieuse qui participe à l’animation du quartier avec des rez-de-chaussées actifs (tiers-lieux, épicerie solidaire, micro-crèche) ;
- un projet engagé pour le vivre ensemble avec une diversité de logements (T1 au T5), et des espaces communs généreux : un jardin paysagé en coeur d’îlot et des toitures et terrasses partagées ;
- des matériaux décarbonés (béton de chanvre, béton bas carbonne, ossature bois...) et une architecture méditerranéenne avec une double épaisseur de façade permettant d’offrir des loggias abritées ;
- une approche bioclimatique avec des formes urbaines diversifiées afin de faciliter la ventilation naturelle et un coeur d’îlot planté pour éviter les effets d’îlot de chaleur urbaine ;
- une attention portée à la qualité du logement avec la prise en considération des principes de la charte de la ville de Marseille : logements traversants ou bi-rientés, HSP généreuses pour faciliter la ventilation naturelle, espaces extérieures privatifs, etc...
| Maître d’ouvrage | Vilogia |
|---|---|
| Équipe | tdso (mand.), Betrec, Inddigo, néo-éco |
| Mission | Complète |
| Montant travaux | 12.6 M € HT |
| Livraison | Concours 2023 |







Marseille (13)
Le projet se situe dans le quartier de La Timone, à l’emplacement de l’ancien commissariat du 5ème arrondissement de Marseille. Il comprend la construction de 82 logements dont 47 logements sociaux familiaux et 35 logements de pension de famille, et un socle actif en rez-de-chaussée.
Ce projet d’habitation sociale se définit selon plusieurs axes avec une grande ambition environnementale et une volonté du « vivre ensemble » :
- une insertion respectueuse du contexte proposant de larges perméabilités ;
- une programmation ambitieuse qui participe à l’animation du quartier avec des rez-de-chaussées actifs (tiers-lieux, épicerie solidaire, micro-crèche) ;
- un projet engagé pour le vivre ensemble avec une diversité de logements (T1 au T5), et des espaces communs généreux : un jardin paysagé en coeur d’îlot et des toitures et terrasses partagées ;
- des matériaux décarbonés (béton de chanvre, béton bas carbonne, ossature bois...) et une architecture méditerranéenne avec une double épaisseur de façade permettant d’offrir des loggias abritées ;
- une approche bioclimatique avec des formes urbaines diversifiées afin de faciliter la ventilation naturelle et un coeur d’îlot planté pour éviter les effets d’îlot de chaleur urbaine ;
- une attention portée à la qualité du logement avec la prise en considération des principes de la charte de la ville de Marseille : logements traversants ou bi-rientés, HSP généreuses pour faciliter la ventilation naturelle, espaces extérieures privatifs, etc...
| Maître d’ouvrage | Vilogia |
|---|---|
| Équipe | tdso (mand.), Betrec, Inddigo, néo-éco |
| Mission | Complète |
| Montant travaux | 12.6 M € HT |
| Livraison | Concours 2023 |
architectes
urbanistes
10 Rue Rigord
13007 Marseille
04 91 33 07 00
contact@tdso.eu